SELECT YOUR COUNTRY

Comprehensive Construction Documentation Services for Precision Building Projects

United States - March 26, 2026, 12:34 pm
United Statesus

Details

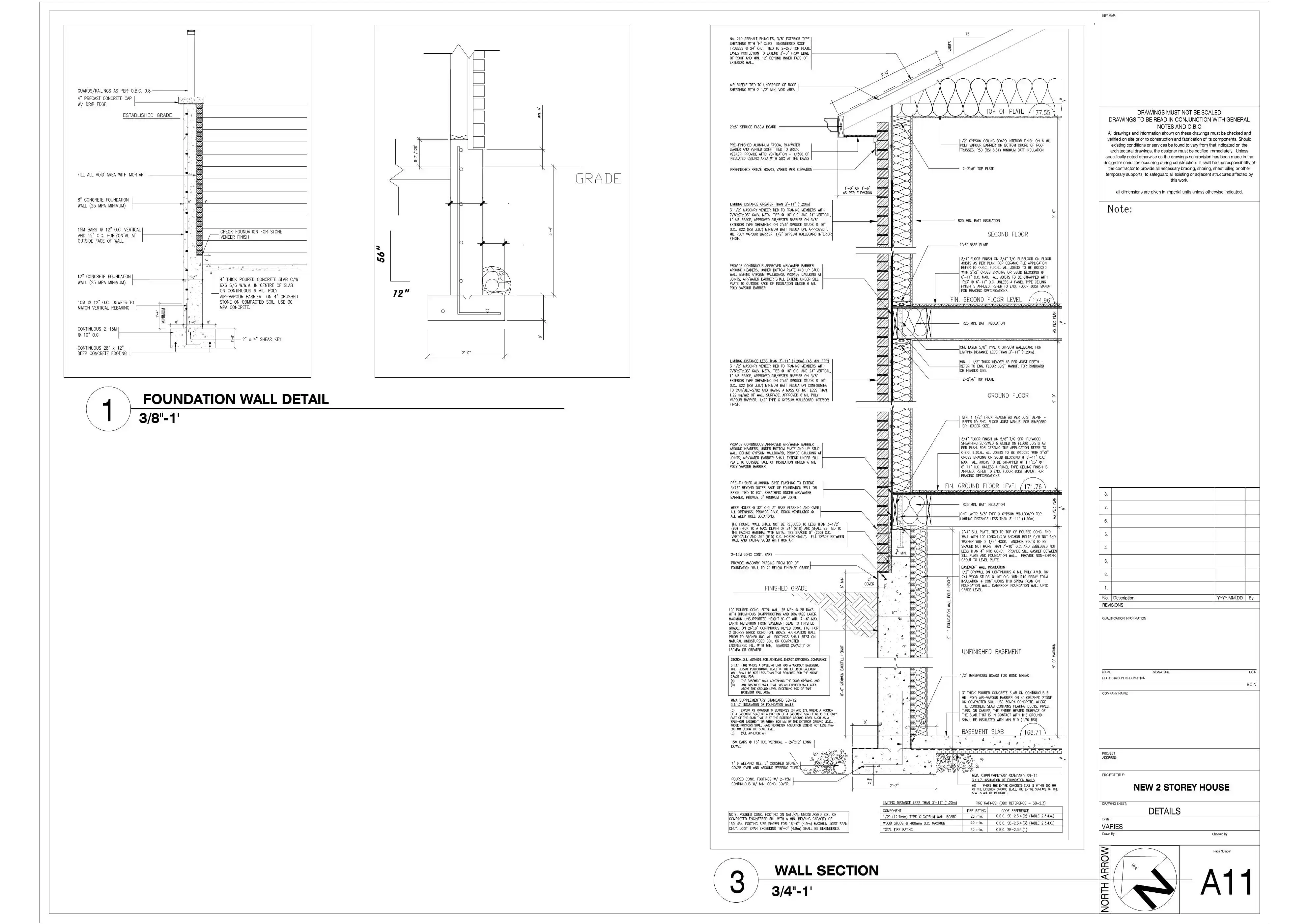
CAD Services India provides high-quality technical support to architects, engineers, and developers through streamlined documentation processes. By transforming conceptual designs into detailed technical sets, these services ensure that every phase of a building project aligns with regulatory standards and structural requirements.

Our construction documentation ensures that every stakeholder has access to precise technical data, reducing errors during the onsite execution phase.

  • By utilizing professional construction documentation services, firms can maintain strict adherence to international building codes and local safety regulations.
  • Specialized architectural documentation services provide the necessary depth for complex floor plans, elevations, and detailed sections required for permit approvals.
  • Comprehensive building documentation services bridge the gap between initial design intent and final physical construction, offering a roadmap for contractors.
  • Advanced cad architectural design documentation services allow for seamless integration of MEP, structural, and architectural layers into a single cohesive set of drawings.
  • Reliable construction drawing services minimize material waste and optimize labor efficiency by providing clear, annotated instructions for the job site.

CAD Services India brings years of industry expertise and a dedicated team of CAD technicians to every project. We focus on delivering accuracy, meeting tight deadlines, and providing scalable solutions that cater to both residential and large-scale commercial developments.

Short URL

Comments

Recent ads in this category

Planning a restaurant and searching for reliable Restaurant Architects Services in Las Vegas to design a functional and welcoming space? SS...
5 views | 2 days ago
Pre-construction coordination is essential for preventing spatial conflicts and onsite rework. Our BIM clash detection services provide a sy...
3 views | 2 days ago
When planning a luxury home renovation in Mount Pleasant, SC, attention to detail is essential. At W.H.I. Renovations LLC focuses on deliver...
6 views | 3 days ago
CAD Services India provides high-quality technical documentation and design support tailored to meet the rigorous demands of modern construc...
3 views | 4 days ago
At Dalpos Architects and Integrators, multifamily residential architects focus on creating living environments that balance comfort, privacy...
10 views | 5 days ago
Post your reply for this AD

Recent ads in this category

Planning a restaurant and searching for reliable Restaurant Architects Services in Las Vegas to design a functional and welcoming space? SS...
5 views | 2 days ago
Pre-construction coordination is essential for preventing spatial conflicts and onsite rework. Our BIM clash detection services provide a sy...
3 views | 2 days ago
When planning a luxury home renovation in Mount Pleasant, SC, attention to detail is essential. At W.H.I. Renovations LLC focuses on deliver...
6 views | 3 days ago
CAD Services India provides high-quality technical documentation and design support tailored to meet the rigorous demands of modern construc...
3 views | 4 days ago
At Dalpos Architects and Integrators, multifamily residential architects focus on creating living environments that balance comfort, privacy...
10 views | 5 days ago


Quick Links