SELECT YOUR COUNTRY

Casa Modular 38 m² con Terraza

Spain - March 5, 2026, 8:46 pm
Spaines

Details

Casa Modular 38 m² conTerraza
Precio: 60.800 € (entrega no incluida)
Características principales
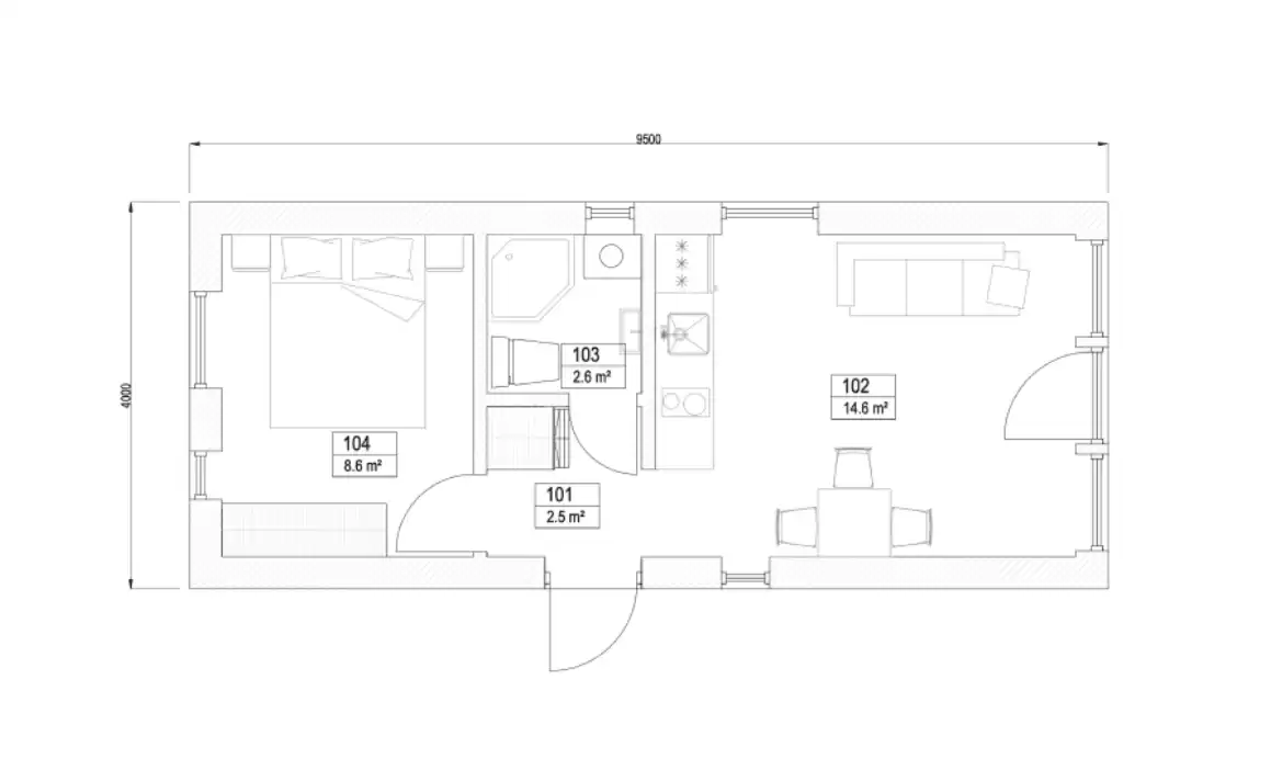
• Distribución: 1 dormitorio, 1 baño, 1 salón, planta baja
• Superficie: 38 m²
• Aislamiento: 250–300 mm lana mineral + 38 mm poliestireno (suelo)
• Techo: techo metálico de chapa con junta alzada y canalón
• Ventanas y puertas: PVC con triple acristalamiento, puertas chapadas
• Calefacción: suelo radiante
• Acabados: suelo vinílico, azulejos en el baño, revestimiento de madera
• Instalaciones: electricidad, agua, saneamiento (clase ABB)
• Garantía: 10 años

¿Por qué esta casa?
Casa moderna y eficiente energéticamente de 38 m² con materiales premium.Excelente aislamiento reduce costes energéticos y su rápida instalación acelerala mudanza. Ideal para una vida acogedora y ecológica.

Sobre Grata Eco House
Grata Eco House es líder en la creación de casas modulares en Europa con 15años de experiencia. Usamos tecnologías innovadoras y materiales de altacalidad para garantizar confort y durabilidad. ¡Contáctanos para elegir odiseñar tu casa!

 

Short URL

https://zumvu.link/mLVXb1

Comments

Post your reply for this AD


Quick Links