SELECT YOUR COUNTRY

High-Precision MEP Shop Drawing Services for Seamless Construction Execution

Australia - March 5, 2026, 12:38 pm
Australiaau

Details

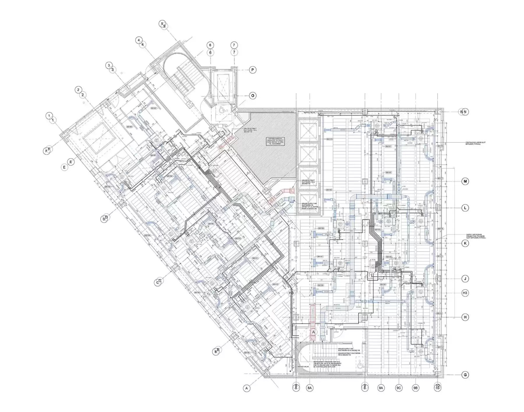
Tesla CAD Solutions provides comprehensive MEP shop drawing services designed to bridge the gap between complex engineering designs and on-site installation. By delivering detailed, fabrication-ready documents, we help contractors and engineers streamline their workflows and ensure project success.

  • Achieve seamless MEP Coordination to align mechanical, electrical, and plumbing systems perfectly before construction begins.
  • Utilize advanced Clash Detection to identify and resolve spatial conflicts early, preventing expensive on-site rework.
  • Transform conceptual designs into reality with detailed 3D BIM Modeling for better visualization and data management.
  • Enhance on-site accuracy with precise HVAC Duct Layouts and comprehensive Fabrication Drawings.
  • Ensure safety and compliance with integrated designs for Fire Protection, Electrical Fixtures, and Plumbing and Drainage systems.
  • Reduce project overheads through Cost-Efficient Solutions that prioritize Technical Precision and material optimization.

With over a decade of experience in the Australian AEC industry, our team of qualified engineers combines deep domain expertise with the latest technology. We focus on delivering high-quality, standardized drawings that adhere to local building codes, ensuring your project is delivered on time and within budget.

Short URL

https://zumvu.link/bRHj31

Comments

Recent ads in this category

Broken Car Collections, based in Sydney, Australia, offers good solutions to top scrap vehicles for cash, making car removal easy and hassle...
4 views | 15 hours ago
Looking for a smarter way to cut energy bills and stay powered during outages? Our Battery Storage Systems Canberra solutions are designed t...
6 views | 16 hours ago
Get safe and comfortable wisdom teeth removal in Bayswater VIC. Learn when extraction is needed, common symptoms, and treatment options for ...
6 views | 16 hours ago
Jobs requiring precise load placement in multiple directions need a crane built for exactly that. At DV Mobile Crane Hire, our 7T slew crane...
4 views | 17 hours ago
Sodium Chloride for Injection is a trusted solution in medical environments, commonly used for fluid replacement and drug dilution. Its ster...
4 views | 18 hours ago
Tesla CAD Solutions
Tesla CAD Solutions

Australia's Leading BIM, CAD, VDC and Engineering Designs Services Provider

Post your reply for this AD

Recent ads in this category

Broken Car Collections, based in Sydney, Australia, offers good solutions to top scrap vehicles for cash, making car removal easy and hassle...
4 views | 15 hours ago
Looking for a smarter way to cut energy bills and stay powered during outages? Our Battery Storage Systems Canberra solutions are designed t...
6 views | 16 hours ago
Get safe and comfortable wisdom teeth removal in Bayswater VIC. Learn when extraction is needed, common symptoms, and treatment options for ...
6 views | 16 hours ago
Jobs requiring precise load placement in multiple directions need a crane built for exactly that. At DV Mobile Crane Hire, our 7T slew crane...
4 views | 17 hours ago
Sodium Chloride for Injection is a trusted solution in medical environments, commonly used for fluid replacement and drug dilution. Its ster...
4 views | 18 hours ago


Quick Links